Skip to main content
Search
Close Search
Menu
Menu
Portada
»
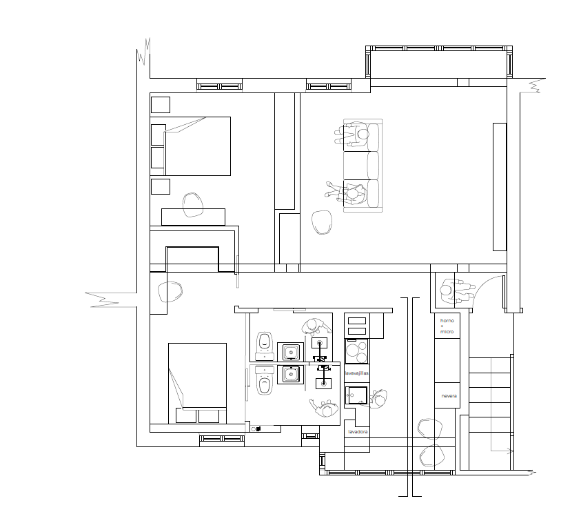
Casa Foro
Casa Foro
Resumen y Obetivos
Imágenes
Año
2025
Estado
En Diseño
Trabajos
Diseño de Interiores
Dirección de Obra
Vivienda vacacional en Gijón
Share
Share
Share
Share
Pin
Close Menu
Proyectos
Estudio