Año

2022

Estado

Finalizado

Trabajos
  • Diseño
  • Dirección de Obra

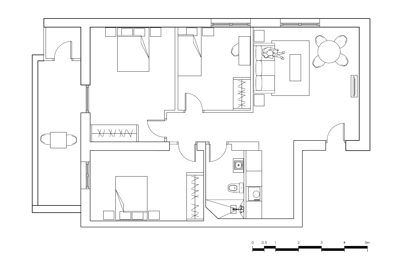
Reforma integral de vivienda existente para alquiler vacacional en Madrid.