Casa Trinidad
2025
Estado
En Construcción
Trabajos
- Diseño
- Dirección de Obra
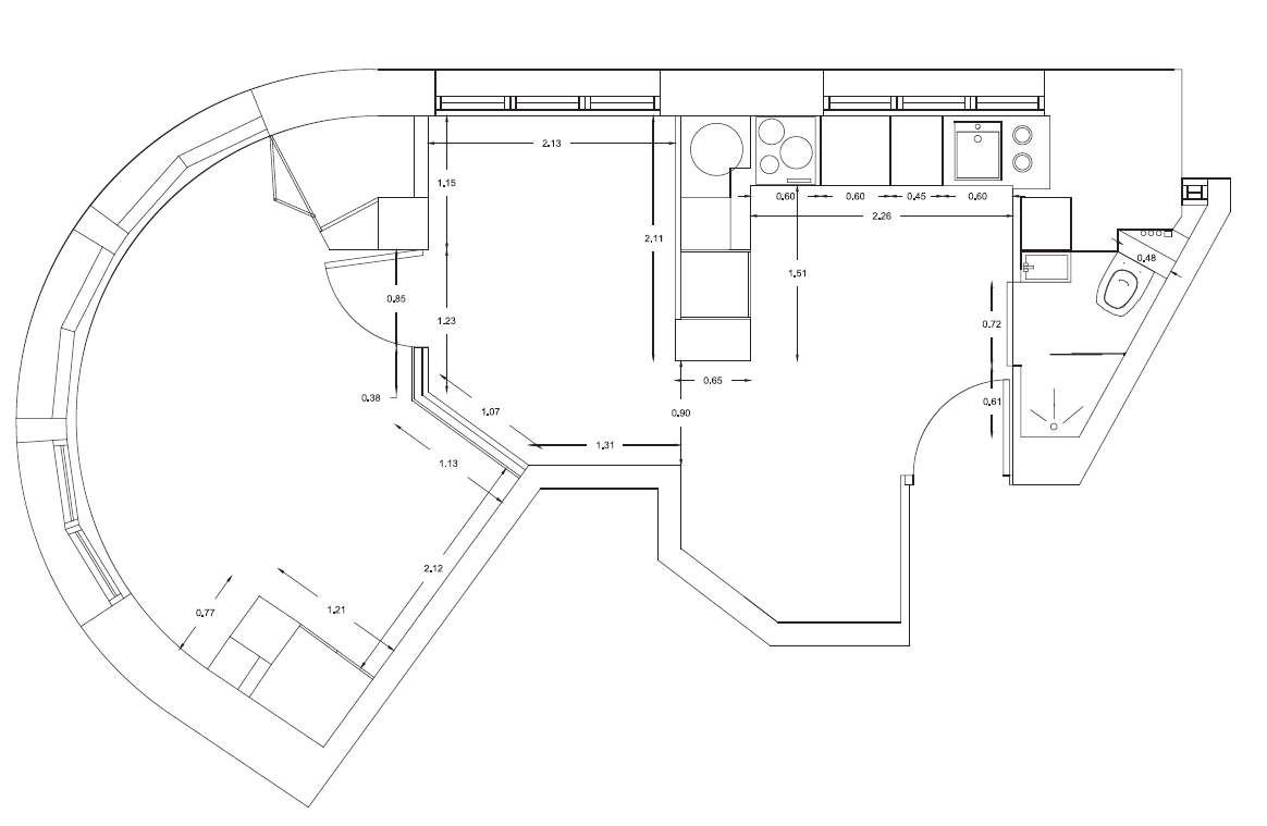
Un espacio reducido frente a uno de los lugares más emblemáticos de Gijón para el disfrute de una familia de 4 en sus escapadas de fin de semana a la Villa gijonesa.
Condicionada por su entramado estructural, la forma de fachada y las reducidas dimensiones, se consigue dar forma a un espacio polivalente para que dos adultos y dos niños pequeños puedan pasar su tiempo de ocio en casa cómodamente.










