El Ganso
2014
Estado
Finalizado
Trabajos
- Diseño de Interiores
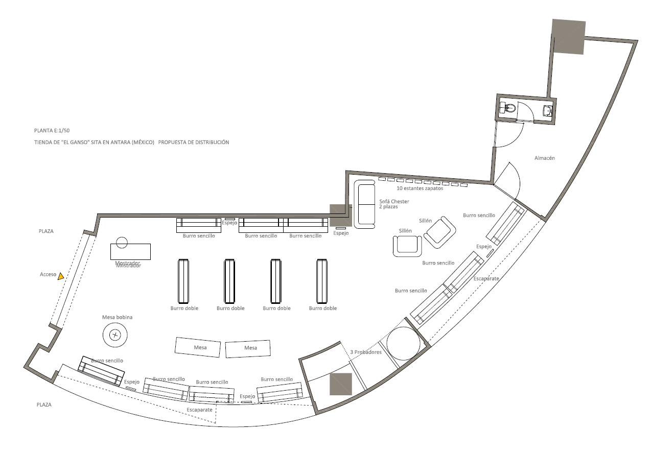
Proyectos de distribución para El Ganso para sus tiendas en centros comerciales de España y México (L´Illa, Antara, La Cañada, Antea- Querétaro)
2014
Finalizado
Proyectos de distribución para El Ganso para sus tiendas en centros comerciales de España y México (L´Illa, Antara, La Cañada, Antea- Querétaro)